| Niveau | Pièce | Surface |
|---|
Maison de caractère
GINOLES (11500)
- 248 m²
- 9 pièce(s)
- 5 chambre(s)
- NC
Superbe chambre d’hôtes dans un petit village au calme avec piscine et jardin de 400m².
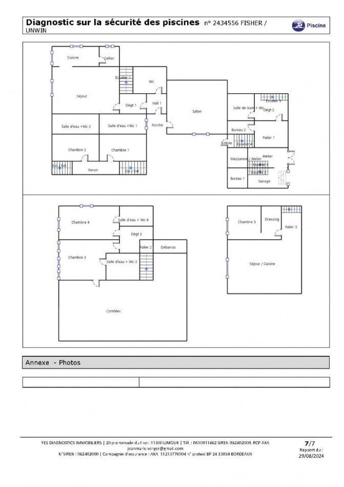
En fonctionnement depuis 10 ans avec une clientèle régulière de randonneurs sur le Sentier Cathare. Au rez de chaussée salon de 32m² avec poêle a bois, salle a manger avec poêle a bois de 24.71m², cuisine équipée de 17.45m², débarras 5.41m², WC. Au 1er étage Chambre 1 de 20m² avec salle de douche en suite 4.68m², chambre 2 de 19.69m² avec salle de douche en suite 5.46m², local buanderie de 4.57m². En annexe chambre 3 de 10.09m² avec salle de douche en suite 8.98m², chambre 4 de 10.95m² avec salle de douche ensuite 5.27m².
Studio indépendant avec cuisine/salon 25.51m² avec poêle a pellets , chambre 18.04m², salle de bain 7.43m². Deux bureaux de 4.453m² et 7.45m². Appentis 26.66m², garage 29.34m², atelier avec mezzanine 31.41m².
Piscine de 8mx4m, jardin arboré, 2 places de parking. Électricité et plomberie neuves, isolation au toit et aux murs.
Double vitrage bois partiel (a finir), Radiateurs électriques.
AFFAIRE A NE PAS RATE.
Taxe foncière €2460/an
Notre barème d'honoraires
* Honoraires charge vendeur.

Montant estimé des dépenses annuelles d'énergie pour un usage standard: entre 2 420,00€ et 3 330,00€ par an.Prix moyens des énergies indexés sur les années 2021, 2022 et 2023 (abonnement compris)
cette annonce à un ami
Veuillez réessayer à nouveau







































